Помпа водяная DC Pump JT-800F 12V; Входное напряжение: 6-12В
Код товара: CTTL13117
Есть в наличии| 2710 c |
| 2710 c |
|
|
|
|
Помпа водяная DC Pump JT-800F 12V
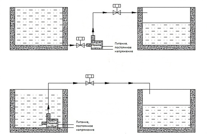
Миниатюрная водяная помпа относится к разновидности насоса с электрическим двигателем и обеспечивает циркуляцию невоспламеняющейся жидкости или забор воды из различных ёмкостей. Она выполнена в герметичном пластиковом водонепроницаемом корпусе из ABS пластика, с общей степенью защиты IP68. Малые размеры позволяют устанавливать помпу в жидкостные ёмкости небольшого размера, узкие скважины или в другие труднодоступные места. Высота подъёма струи в соотношении с расходом прокачиваемой жидкости достигаются регулированием постоянного напряжения в диапазоне от 6 до 12 вольт. Длина питающего провода достаточна для погружения помпы в жидкую среду на глубину до 1.5 метров.
Примечание! Обратите внимание, что высота подъёма может отличаться между свободным выбросом струи и вертикальным потоком в трубе или шланге. Причиной тому является образование обратного давления на насос из-за увеличения веса выталкиваемой жидкости. Высота струи может снизиться, если на выходе помпы устанавливаются шланги или трубы б?льшего размера, чем диаметр водозаборного отверстия. В добавок, на вертикальное давление струи могут повлиять плотность и вес различных жидкостей.
В процессе работы под максимальной нагрузкой помпа может нагреваться, в следствии чего ей требуется охлаждение. Во избежании перегрева и последующей порчи помпы, не включайте её без жидкости.
Сфера применения: минифонтаны, декоративные дизайнерские решения в оформлении интерьера и ландшафта, гидропоника, садоводство и цветоводство. А также бытовое, промышленное и медицинское оборудование.
Варианты установки
Габаритные размеры, мм
------------------
СЕЕД13117:2710
Доставка может производиться различными по Вашему выбору способами. Это и самовывоз, и курьерские службы по г. Москве, и транспортные компании по России. Также мы можем выслать этот товар Почтой России. Если размеры, вес товара Помпа водяная DC Pump JT-800F 12V; Входное напряжение: 6-12В или соображения удароустойчивости находятся в разрешённых Почтой России пределах.





